Luxury Hotel SottoVento
Luxury Hotel SottoVento – Bormio
Architettura, Interior Design, Brand Identity
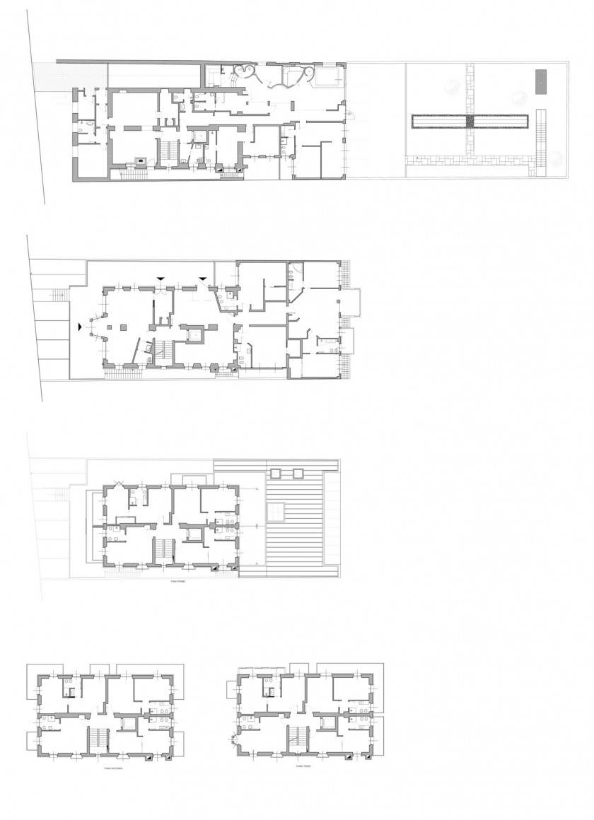
Intervento di recupero di una storica struttura alberghiera nel cuore di Bormio, tra le montagne dell’Alta Valtellina.
Il progetto si fonda su una attenta ridefinizione degli spazi, dalle venti suite alle aree comuni, con l’obiettivo di restituire al luogo un’identità contemporanea senza perdere la sua anima originaria.
Grande attenzione è stata dedicata ai materiali — legno vecchio, pietra e ferro — usati secondo la tradizione ma reinterpretati con un linguaggio pulito ed essenziale, capace di creare equilibrio tra calore alpino e design moderno.
L’intervento, realizzato nell’arco di 24 mesi di lavoro, ha richiesto sensibilità e precisione, data la delicatezza della struttura storica e la cura maniacale di ogni dettaglio.
Un progetto che unisce architettura, interior design e brand identity, dove anche il logo dell’hotel porta la nostra firma: la visione di uno studio multidisciplinare che costruisce esperienze coerenti tra spazio, materia e immagine.












